Front of School renovation project
Front of School renovation project
We are excited to announce that we are able to progress with the renovation project of the front of school area because we were successful in securing a Commonwealth grant for building work as part of the Block Grant Authority funding scheme. Excellent news!
Here’s why we are doing it
The relationship between architecture and schooling is well documented and is a vital component of any educational journey. At its best the physical environment sparks curiosity and engagement of children’s learning. It considers the emotional well-being of the students through the promotion of flexible spaces and deep connection with nature. It provides important spaces for children to move and play. The spaces encourage collaboration and communication. At the centre, is the safety of the children and their families.
Kindlehill and its unique architectural features are central to the educational journey for the children. There is intention and beauty in all aspects of the spaces we provide for our students and their families. A comment I receive time and time again as I conduct school tours is how beautiful the school is and how the buildings create a warmth and a beautiful environment that inspires many families to come and join the school community.
I believe it is the right thing to welcome and remind students and families at the start of each day, each term and year, that schooling and learning is important, beautiful, intentional, connected and engaging. The renovation reinforces this message. The physical point of arrival at school will be imbued with beauty and purpose connecting children and their families to these ideals.
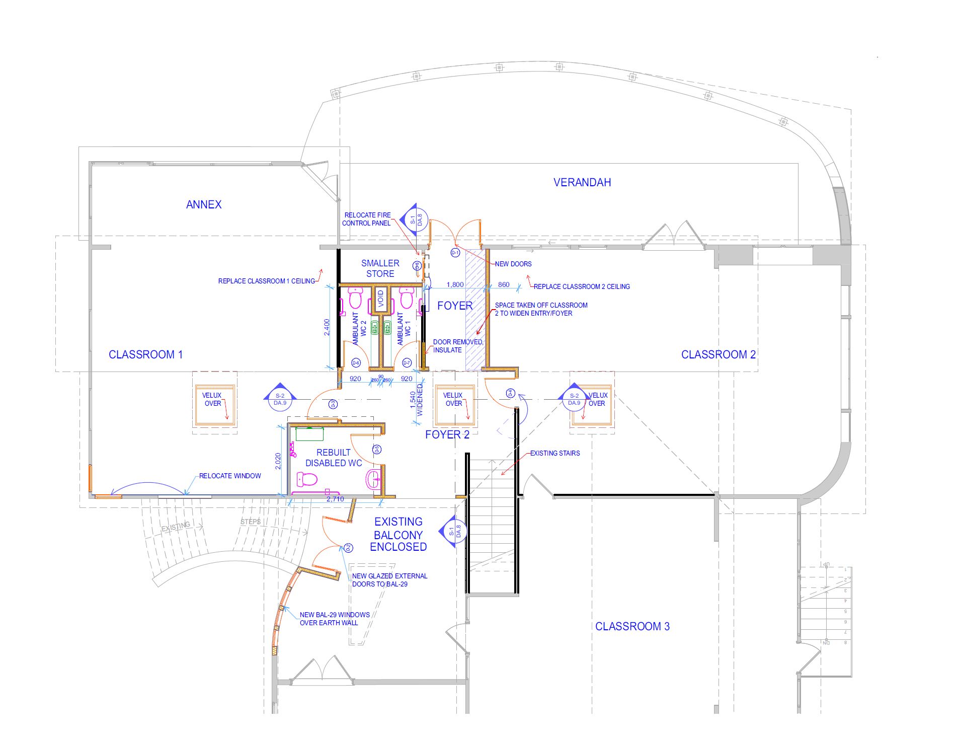
Here is what we are doing
The planned renovation is a renewal of the entrance to the Primary School – the initial moment where families come each day and spend time. This includes the current class 1 and class 2-3 rooms and the hallway.

The entry into the school will be physically wider to promote better flow for students and families to the rest of the school. Families will be met with double doors reflecting our dragonfly totem and our recognition of the importance of place in the education we offer. It is a space where we can move, connect, converse and feel the excitement and joy of entering school and beginning the learning. Skylights will increase the natural lighting in the entry and classrooms. It connects us to the natural world and builds on our curiosity of the natural world as we feel our connection to earth and sky.
Here is when we are doing it
The project is due to commence at the end of term 3 and is planned to be completed before the return to school in Term 1 2026.
Here is how we will communicate
We will use this page to provide our families with all the relevant information you will need as we approach the project. We will alert you to updates on the page via newsletters.
On this page you will find information about:
-
Progress on the building
-
Arrangements the temporary changes to classrooms
-
Travel and access into the school plans
-
Working bees and support we would like to make the project run smoothly
Here is how you can help right now
WORKING BEES – 9th AUGUST
We are holding a working bee on the 9th August, 9.00- till it’s done to clear out under the classrooms. Many hands make light work! Families can come along and lend a hand and share in building the future of the school. We will share morning tea and a warming hot soup with delicious bread will be on offer. A beautiful way to connect and build belonging in our community.
If you have queries and concerns we encourage you to reach out.
Andrew Robertson, Business Manager – business@kindlehill.nsw.edu.au
Erica Chaperlin, Principal – erica@kindlehill.nsw.edu.au
I am so excited.
With warmest regards,
Erica
-

Renovation update- drop-off's & pick-up's
-

Renovation update - Classroom Changes
-

Renovation update - week 3

